美绝了!万能色彩公式:80%白+15%灰+5%黑

83 0
今天,跟大家分享一套极具色彩美感的设计。


设计师通过主色黑白灰的比例配置,分为一个个小体块投入各个区域之中,看似不是特别出挑的色彩,却打造出一个有趣且极富质感的家。

一句话总结就是:80%白+15%灰+5%黑。

这个万能色彩公式,也值得各位小伙伴借鉴哦!

图片

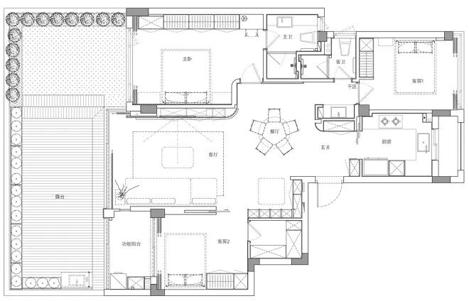
我们先来看看原来的布局:原户型入户门直对内部空间过于直接,客厅面积狭小不够宽敞,卫生间的尺寸极不合理。

整体上,格局没什么大问题,但是细部上都需要重新调整,将居住的舒适度提升上来。

图片

为了解决以上问题,首先,设计师为解决入户门直对室内空间而做了一个具备储物功能的实用型玄关,且在背后设置一个盥洗池干区,恰好解决原来卫生间空间狭小拥挤的问题,一箭双雕。

将客厅的阳台包进室内作为客厅的一部分,将原本较为狭小的客厅变得更为宽敞舒适,同时在很多的拐角处增加弧度造型让空间动线更加优化与柔美。

图片

客厅色彩上,则遵循了开头提到的色彩公式:80%白+15%灰+5%黑。

首先,以80%的白为底色大面积铺开;其次,借电视背景和沙发加入15%的灰;最后,电视和茶几则做到了5%黑的点缀。

以上色彩搭配,形成了一个色彩不张扬、却令人感觉舒服自在的空间配色。

而适当的色调比例运用,让空间通透干净而又极富调性。

原户型客厅面积是比较局限的,活动空间不够大,结合业主意愿,我们选择把阳台包进室内,作为客厅的一部分,而在顶部客厅与阳台之间的横梁,我们用灰色艺术漆刷染,强调顶部空间和客厅呼应,也压制了顶部大面积白的飘忽,打造一个闲散可控的氛围。

有时,一个空间给人独有的感受就来自于这些容易被人忽略的空间细节。

除了装饰之外,顶部空间的其他价值也应当值得我们重视。

图片

阳台与内部空间连贯一体之后客厅变得通透敞亮,面积也足够宽敞可以放的下一个四座组合沙发,亲友到访也有足够的位置接待。

平常生活中,也方便小朋友在这个区域自由玩耍。

图片

我们在沙发后面的空间做了一个长方形的玻璃隔断,既给客厅增加了造型的趣味,也和背后的功能阳台之间互动强化空间的通透感,长虹玻璃的材质隐隐约约让彼此有着独善其身的玩味。

图片

在沙发的另一侧相邻的拐角空间,我们做了一个收纳空间,整个L型空间都是收纳柜,一部分以展览的格口形式呈现,放一些业主的饰品书籍成为一个展示空间,同时加入了格纹元素丰富立面,做一个与展览架的拐角衔接过渡。

颜色上,用黑色把这个小小的转角空间连贯为一个整体,一个功用性很强的休闲小角落就这样生成了。

在顶部还有一个小细节,我们做了一个弧形过渡,在用意上和下部区域呼应整合空间。

图片

图片

在沙发的另一侧是儿童房门,房门是内嵌隐藏式的推拉门,在客厅与卧室的墙体内铺设移门暗轨道,平日里敞开把门推进墙内,也是颜值在线!

同时结合了拱门的元素在墙壁上做了一个曲面的造型,增加趣味与美感的同时,也和顶部空间的曲线呼应。

图片

想了解更多装修知识 享受更多福利与保障?

提交

扫码关注得意家居微信

扫码下载得意家APP

得意家居带你得意·带你飞

  • 每天超过20000人在线装修分享+经验交流
  • 汇聚3000个装修案例与样板工地逾100000张装修美图实时更新,装修风格一手掌握
  • 全年不间断家具+建材+家电活动,50万人的共同选择
  • 公益验房、量房设计、预算审核等精彩公益服务

岚庭装饰

得意认证商家
在线咨询: 点击这里给我发消息
客服电话: 13554257791
店铺地址: 友谊大道508号万利广场3楼

TA还写了什么?

你都知道吗?

量房报价
咨询客服
回到顶部

扫码咨询客服

返回顶部

认证口碑装修公司任您挑选,获取装修报价

立即申请

服务武汉本地业主,新房装修,精装房/二手房改造,软装搭配
得意家官方客服一对一服务

为提供专业的设计和板材信息,杜绝货不对板

立即申请

明码实价!特供福利意粉专享,看得见
的专属优惠

优选靠谱暖通公司,免费设计和报价

立即申请

暖气一定要选正规军,品质产品,靠谱施工,优质服务很关键

专业监理上门检验,保障业主装修质量

立即申请

节点验收/全程监理/预审报价/陪签合同/验收日志,为您提供装修管家式服务